Fiyatlar   
              10500 Euro
10500 Euro
12500 Euro
13750 Euro
13750 Euro
12500 Euro
10500 Euro
- Fiyatlar Günlük Olarak Belirtilmiştir.

Yat Hakkında
- Tipi gulet
- Boyu 47
- Yapım Yenileme 2023
- Klima ✓
- Kabin 5
- Motor 2 x 850 hp man
- Yolcu Sayısı 10
- Fiyatı 10500 €
GENEL ÖZELLİKLER
Tip
Gulet
Yapım yılı/Yenileme
2023
Gövde
Fiber
Uzunluk
47 m
Genişlik
9,5 m
Sürat
11 Knots
Liman
Bodrum
Bayrak
Türk
Yolcu
10
Mürettebat
8
Motor
2 x 850 Hp Man
Jeneratörler
X
Yakıt Tüketimi
X
Yakıt Tankı
X LT
Temiz Su Tankı
X LT
KAMARA AYRINTILARI
Salon
Bar, Salon yemek masası, Konforlu Oturma Alanı, Modern mobilyalı, Tam donanımlı
Mutfak
Tam donanımlı
Kabin / Yatak / Tip
5 Kabin / 1 Master - 3 Double - 1 Twin
Banyo
Her kabinde - Duş Kabinli
Tuvalet
Her kabinde - Ev Tipi
Personel Kabini
Var - Ayrı
Müzik Sistemi
Var - Salonda
TV-Uydu
Var - Her Kabinde
Elektrik
220 V, 24 V.
Elektronik Sistemler
Haberleşme cihazı, Derinlik ölçer, Radar, GPS, Pusula, Uydu haberleşme cihazı, Otopilot, Elektronik harita, Tüm seyir cihazları
Klima
Var (24 Saat)
Gece Klima Kullanımı
Uygun
Diğer
Buz makinesi, Kahve makinesi, Şarap soğutucu, Türk karasularında internet bağlantısı, Saç kurutma makinesi, Kasa, Tavla, Okey, Oyun Kağıtları
GÜVERTE EKİPMANLARI
Direk ve Yelkenler
Var
Servis Botu
2x Tender - 100 Hp Honda Northstar Orion 4,8 m , 250 Hp Honda 7 m Northstar Orion
Su Oyuncakları
2 x Jet ski, Big Mable, Ringo, SUP, 2 x Kano, Su Kayağı, Wakeboard, Seabob, Waydoo Efoil Eletric, 2x Padel board
Diğer
Şnorkel ekipmanları, Balık tutma malzemeleri, Güneş tenteleri, Güneş yatakları, Güvertede duş, Deniz merdiveni
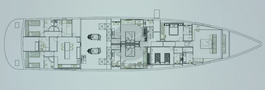
NORTH WIND Yat Planı
Fiyata Dahil Olanlar
- Liman vergileri, marina bağlama ücretleri (özel marinalar hariç)
- Transitlog, liman formaliteleri ve acentelik hizmetleri
- Palamar ücretleri
- Günlük temizlik
- Personel servisleri
- Kullanma suyu
- Teknede bulunan motorsuz su oyuncakları
- Yat sigortası
Fiyata Dahil Olmayanlar
- Tekne Yakıtı
- Motorlu su sporları için yakıt
- Yiyecek ve içecekler
- Yurt dışı turlarda giriş-çıkış, gümrük masrafları ve liman masrafları
- Personel bahşiş
 
				


















 
           
           
           
           
           
           
           
           
           
           
           
           
           
           
           
           
           
          
